bcm

BCM A-007-09
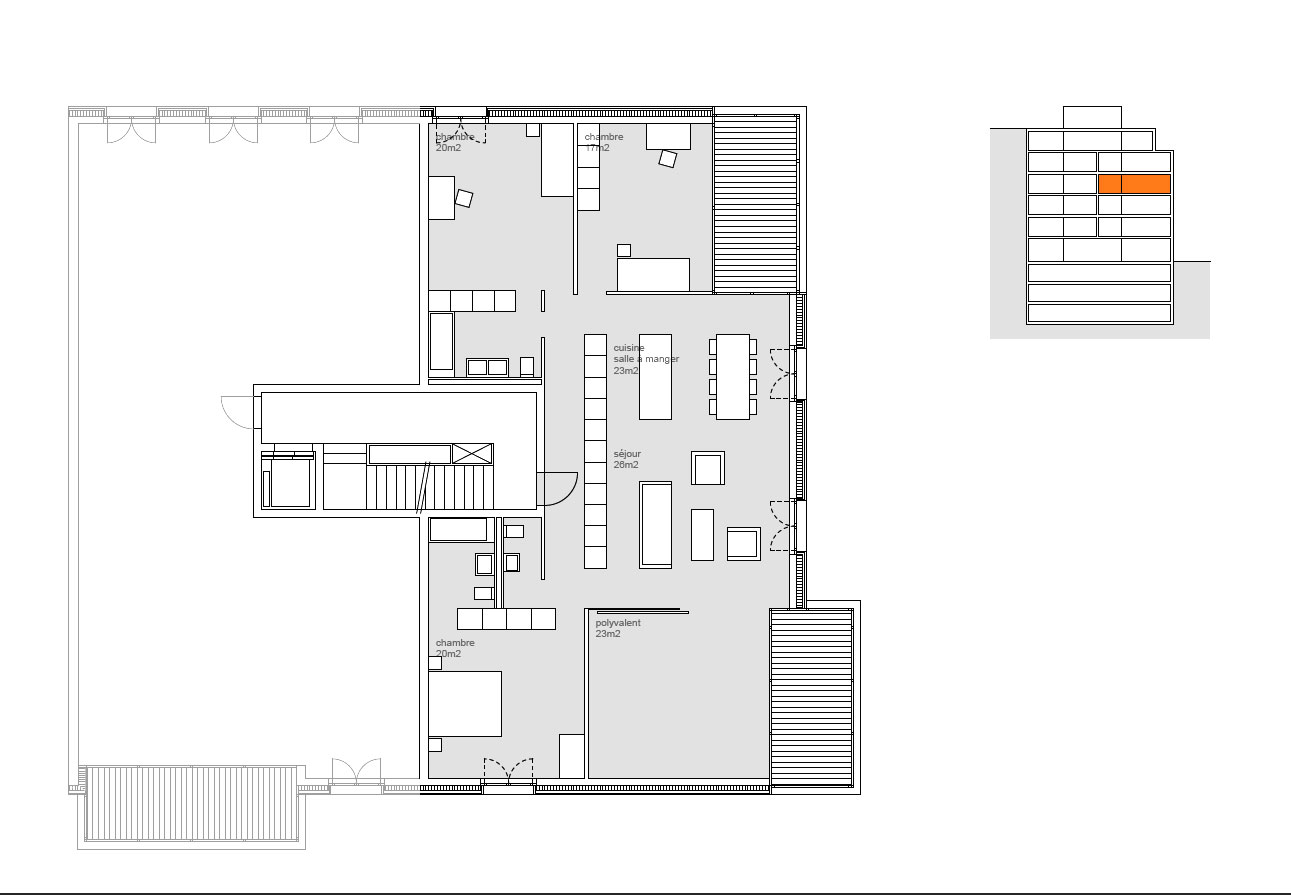
nom: bcm
date: 2009
lieu: genève
maître d'ouvrage: privé
coût: non communiqué
type: habitat collectif
status: abandonné

14
10
6
2
13
9
5

BCM A-007-09
nom: bcm
date: 2009
lieu: genève
maître d'ouvrage: privé
coût: non communiqué
type: habitat collectif
status: abandonné

1
12
8
4
11
7
3