bvt
BVT A-006-08
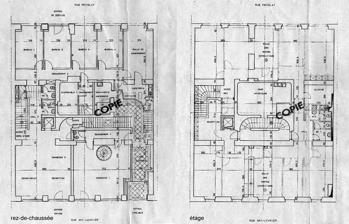
nom: bvt
date: 2008-2009
lieu: genève
maître d'ouvrage: bovet fleurier sa
coût: non communiqué
type: commercial|administratif
status: terminé
50 | 46 | 42 | 38 | 34 | 30 | 26 | 22 | 18 | 14 | 10 | 6 | 2 |
49 | 45 | 41 | 37 | 33 | 29 | 25 | 21 | 17 | 13 | 9 | 5 | BVT A-006-08 |
48 | 44 | 40 | 36 | 32 | 28 | 24 | 20 | 16 | 12 | 8 | 4 | |
47 | 43 | 39 | 35 | 31 | 27 | 23 | 19 | 15 | 11 | 7 | 3 |

















































